さてさて、
全てが同時進行でぱっつんぱっつんの美容室開業ですが、
こちらも面白くなってきました!!!
(融資も決まって無いのに設計してんじゃねーよ って言わないでね(はーと)
ちょっとずつ、
変わってきてます。
いや、
かなり変えてます。
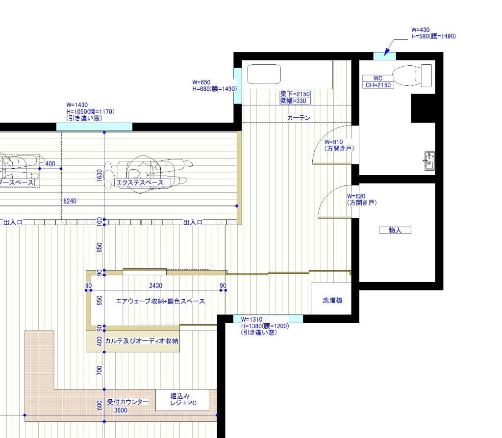
新たにこの2プランが。
これ、
すべての悩みの根源が、
なんと・・・・
トイレ!!!!!!!!
なんです・・・・
トイレの位置が難しくて、
トイレを移動させるかどうかでかなり悩んでます。
移動しない場合は、
こんなとか
こんなとか
ここでかなり悩んでます。
トイレの移動は費用もUPしますし、
でも移動した方が無理の無いレイアウトが可能に・・・・
難しい(>_<、)
けど面白い( ・∇・)
今日もこの後、
設計事務所でプランニングの続きです。
行ってきまーーーす
また報告します!
宜野湾市にOPEN予定
美容室 FIREHEAD hair creation





コメントを残す